Active MLS# 25082401

1939 Hunting Lake Court, 1939, Kirkwood, MO 63122

Subdivision: Greenbriar Condo

List Price: $224,900

(Original Price: $234,900)

Reduced $10,000 on Jan 13, 2026

2

Bedrooms

2

Baths

1,136

Area (sq.ft)

$198

Cost/sq.ft

2 Story

Type

39

Days on Market
Call Agent

Description

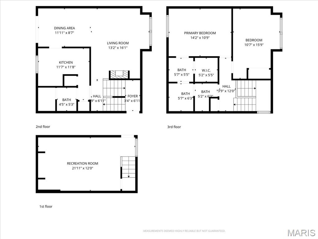
Sophisticated elegance meets modern comfort in this rare end-unit townhouse in the popular Greenbriar community. Perfectly positioned with unobstructed views of the inground pool and clubhouse, this stunning residence offers a sense of privacy and resort-inspired living. Step inside to discover three levels of beautifully maintained space, designed for both relaxation and entertaining. The lower level welcomes you with a spacious family room, complete with a wet bar, built-in shelving, newer luxury vinyl plank flooring, and direct access to the attached garage and laundry — ideal for unwinding or hosting guests. Upstairs, the main living area showcases a light-filled, open-concept layout where the living room, dining area, and kitchen flow seamlessly together. Sunlight pours through the south-southwest-facing windows, accentuating the warmth of the rich engineered wood floors and highlighting the gas fireplace — the perfect focal point for cozy evenings. The kitchen impresses with ample counter and cabinet space, a pantry, and a smooth transition to the dining area. Step outside through the sliding glass doors to your private concrete patio, bordered by lush common ground, ideal for morning coffee or summer gatherings. A convenient half-bath completes this level. On the third level, retreat to the generous primary suite, offering large bright windows, a walk-in closet, and access to a beautifully designed Jack-and-Jill bath featuring dual vanities and a shared tub/toilet area. A second spacious, sunlit bedroom and linen storage complete the upper level, offering comfort and thoughtful design. This remarkable home has been updated with modern wiring throughout, ensuring convenience and peace of mind. Beyond your front door, the Greenbriar community offers an unmatched amenity package: A clubhouse, fitness center, swimming pool, tennis and basketball courts, and paved trail, delivering the perfect blend of leisure and lifestyle with easy access to I-270 at Big Bend. Whether relaxing by the pool, entertaining in style, or enjoying the effortless flow of natural light and contemporary design, this Greenbriar townhome invites you to experience elevated living in its finest form. UPDATES: HVAC, water heater, and luxury vinyl plank in 2025; electrical remediation in 2023. Sewer and trash included in HOA fees.

Property Information

List Price $ 224,900
Original Price $ 234,900
Status Active
MLS# 25082401
Bedrooms 2
Full baths 1
Half baths 1
Main Floor Full Baths 1
Sq. Ft. Above 1,136
Lot Size
Acres 0
Subdivision Greenbriar Condo
Municipality Kirkwood
School District Kirkwood R-VII
County St Louis
Property Type Residential
Style 2 Story
Style Description
Transaction Type
Special Conditions Standard
Type
Building Exterior Amenities Clubhouse,Common Ground,Fitness Center,Coin Laundry,Pool,Tennis Court(s)
Building Style Split Foyer
Ownership Private
Special Description Standard
Appliances Some Dishwasher,Dryer,Refrigerator,Washer,Gas Water Heater

Additional Information

Elementary School George R. Robinson Elem.
Jr. High School Nipher Middle
Sr. High School Kirkwood Sr. High
Association Fee $424/Monthly
Architecture Split Foyer
Construction Brick Veneer,Vinyl Siding
Garage Spaces 1
Carport Spaces 0
Basement Description Concrete,Daylight,Egress Window,Finished
Fireplace Type Gas,Living Room
Fireplace Location
Lot Dimensions
Special Areas
Cooling Ceiling Fan(s),Central Air
Sewer Public Sewer Sewer
Heating Forced Air,Natural Gas
Water Public
Heat Source
Kitchen
Appliances Dishwasher,Dryer,Refrigerator,Washer,Gas Water Heater
Dining
Interior Decor Bookcases,Built-in Features,Ceiling Fan(s),Custom Cabinetry,Laminate Counters,Open Floorplan,Pantry,Separate Dining,Storage,Tub,Walk-In Closet(s),Wet Bar
Property Tax $2,021

Map Location

Rooms Dimensions

Room Dimensions (sq.rt)
Family Room (Level-Basement) N/A
Living Room (Level-Main) N/A
Dining Room (Level-Main) N/A
Kitchen (Level-Main) N/A
Bathroom (Level-Main) N/A
Bedroom 2 (Level-Second) N/A
Primary Bedroom (Level-Second) N/A
Bathroom 2 (Level-Second) N/A

Change History

Listing Courtesy of RedKey Realty Leaders - [email protected]