Active MLS# 25050122

1723 Theodore Lane, Centreville, IL 62206

Subdivision: Parklane Manor

List Price: $127,900

(Original Price: $149,900)

Reduced $2,000 on Dec 15, 2025
Reduced $10,000 on Oct 27, 2025
Reduced $10,000 on Sep 10, 2025

4

Bedrooms

3

Baths

2,092

Area (sq.ft)

$61

Cost/sq.ft

1.5 Story

Type

139

Days on Market
Call Agent

Description

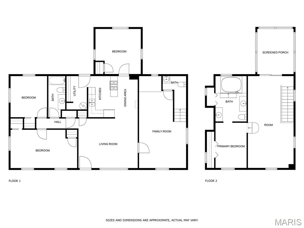
Back on the Market, beautifully updated 4-bedroom, 2.5-bathroom home with freshly painted interior and generous space for entertaining! This spacious residence features stunning hardwood flooring in the living room and hallway, along with brand-new carpeting throughout most of the home. Enjoy both a large living room and a separate family room—perfect for gatherings and relaxation. The upper-level master suite includes a large bedroom, a cozy sitting area, and a luxurious en-suite bathroom with a whirlpool soaker tub, dual vanities, and his-and-her closets. Step out onto the private upper-level deck—an ideal spot for quiet morning coffee or evening conversations. The backyard is perfect for outdoor enjoyment, complete with a patio, lower deck, and full privacy fencing. A large storage shed provides ample space for tools, equipment, or hobbies. The kitchen is fully equipped with stainless steel appliances and thoughtfully designed for both style and function. Additional highlights include solid hardwood interior doors throughout and two separate air conditioning units for efficient climate control on both levels. This home was completely rehabbed in 2002 and offers a perfect blend of modern updates and timeless charm. Just minutes from major intersections and minutes from all shopping and restaurants in the area.

Property Information

List Price $ 127,900
Original Price $ 149,900
Status Active
MLS# 25050122
Bedrooms 4
Full baths 2
Half baths 1
Main Floor Full Baths 2
Sq. Ft. Above 2,092
Lot Size
Acres 0
Subdivision Parklane Manor
Municipality Centreville
School District Cahokia DIST 187
County St Clair-IL
Property Type Residential
Style 1.5 Story
Style Description
Transaction Type
Special Conditions Standard
Type
Building Exterior Amenities None
Building Style Other
Ownership
Special Description Standard
Appliances Some Stainless Steel Appliance(s),Cooktop,Dishwasher,Refrigerator

Additional Information

Elementary School CAHOKIA DIST 187
Jr. High School CAHOKIA DIST 187
Sr. High School Cahokia
Association Fee $0/None
Architecture Other
Construction Frame
Garage Spaces 0
Carport Spaces 0
Basement Description None
Fireplace Type None
Fireplace Location
Lot Dimensions .015ac
Special Areas
Cooling Central Air
Sewer Public Sewer Sewer
Heating Forced Air
Water Public
Heat Source
Kitchen
Appliances Stainless Steel Appliance(s),Cooktop,Dishwasher,Refrigerator
Dining
Interior Decor Ceiling Fan(s),Soaking Tub,Whirlpool
Property Tax $3,587

Map Location

Rooms Dimensions

Room Dimensions (sq.rt)
Living Room (Level-Main) 16 x 13
Family Room (Level-Main) 12 x 25
Bedroom (Level-Main) 18 x 11
Bedroom 2 (Level-Main) 10 x 11
Bedroom 3 (Level-Main) 13 x 13
Primary Bedroom (Level-Upper) 9 x 13
Sitting Room (Level-Upper) 13 x 25
Bathroom (Level-Main) 11 x 5
Primary Bathroom (Level-Upper) 9 x 13
Utility Room (Level-Main) 6 x 9

Listing Courtesy of Just Wright Realty - [email protected]