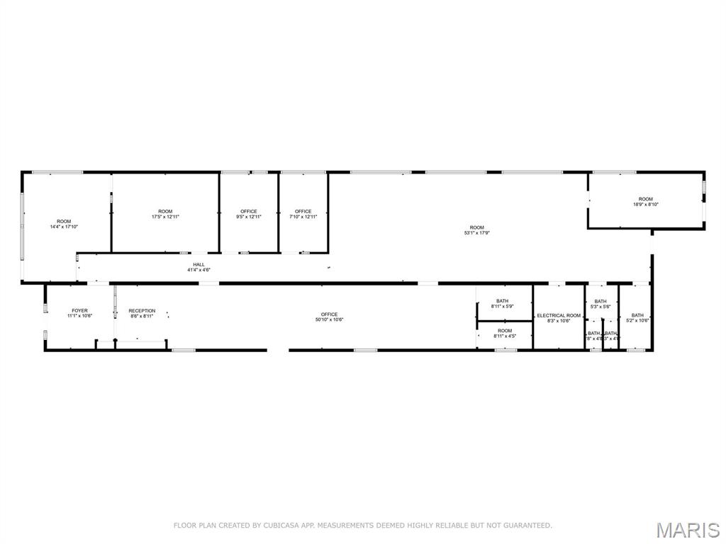
Well-maintained building for lease in prime location on The Hill, with very quick access to I-44 and close to 1-64. Multiple private offices, open office area, conference room, and meeting hall. Three restrooms (one is ADA). See floor plan in photos. Rear parking lot has 7 spaces, plus additional street parking. Newer roof. Office furniture shown is included. Modified gross lease; owner will pay taxes, property insurance, roof and HVAC maintenance. Location: City, Industrial Area
Listing Courtesy of Erker Realty, LLC - [email protected]