Pending MLS# 26012034

3300 Shrewsbury Lane, St Charles, MO 63301

Subdivision: Town & Country

List Price: $350,000

3

Bedrooms

3

Baths

2,440

Area (sq.ft)

$143

Cost/sq.ft

2 Story

Type

5

Days on Market
Call Agent

Description

You are going to FALL IN LOVE with the potential of this estately home situated on over 3/4 acre circle cul-de-sac lot in a great St. Charles location! Three bedrooms with a possible main floor 4th bedroom, 2.5 baths, oversized 2 car garage, over 2400+ sq ft & a .830 acre premium lot with mature trees, this home is going to blow you away! As you step in the two-story entry foyer you will notice the soaring ceiling, large living room & separate dining room. Kitchen that could be fit for the Chef of the family with a stainless steel refrigerator, an electric stove/oven, microwave, dishwasher & tile backsplash. The family room is going to be your favorite room in the house! Step down but look up at the floor-to-ceiling brick fireplace with gas logs, bar that is set for entertaining, vaulted ceiling with wood beams, bay window & french doors that walk right out to the huge wood deck overlooking the massive private park like backyard! There is a possible main floor 4th bedroom, or you could use it as a work-from-home office, den, study, playroom - you choose! Upstairs you will find three large bedrooms with two bathrooms, all with lots of bright, cheery light that will make you smile. The walk-out lower level is unfinished & ready for your vision to come to life with future equity gains & additional total living area. Architectural shingle roof that is 5 years new, newer vinyl siding, high-efficiency HVAC installed in 11/2024 & desirable Anderson wood windows. This home is a GEM & its bones are solid! This one is going to sell fast, so schedule your appointment for your private showing today.

Property Information

List Price $ 350,000
Original Price $ 350,000
Status Pending
MLS# 26012034
Bedrooms 3
Full baths 2
Half baths 1
Main Floor Full Baths 2
Sq. Ft. Above 2,440
Lot Size
Acres 1
Subdivision Town & Country
Municipality St Charles
School District St. Charles R-VI
County St Charles
Property Type Residential
Style 2 Story
Style Description
Transaction Type
Special Conditions Standard
Type
Building Exterior Amenities
Building Style Traditional
Ownership
Special Description Standard
Appliances Some

Additional Information

Elementary School Coverdell Elem.
Jr. High School Jefferson / Hardin
Sr. High School St. Charles High
Association Fee None
Architecture Traditional
Construction Brick Veneer,Vinyl Siding
Garage Spaces 2
Carport Spaces 0
Basement Description 8 ft + Pour,Concrete,Full,Storage Space,Walk-Out Access
Fireplace Type Family Room,Gas Log
Fireplace Location
Lot Dimensions IRR
Special Areas
Cooling Ceiling Fan(s),Central Air,Electric
Sewer Public Sewer Sewer
Heating Forced Air,Natural Gas
Water Public
Heat Source
Kitchen
Appliances
Dining
Interior Decor Bar,Beamed Ceilings,Breakfast Bar,Breakfast Room,Ceiling Fan(s),Eat-in Kitchen,Entrance Foyer,High Ceilings,High Speed Internet,Kitchen/Dining Room Combo,Separate Dining,Storage,Two Story Entrance Foyer,Vaulted Ceiling(s)
Property Tax $3,907

Map Location

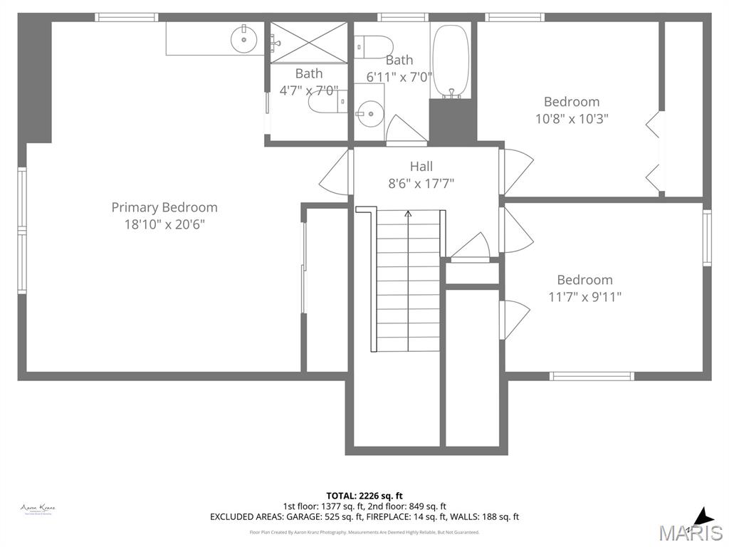
Rooms Dimensions

Room Dimensions (sq.rt)
Kitchen (Level-Main) 18 x 11
Living Room (Level-Main) 15 x 15
Family Room (Level-Main) 20 x 15
Dining Room (Level-Main) 12 x 13
Breakfast Room (Level-Main) 11 x 8
Den (Level-Main) 12 x 10
Bedroom (Level-Upper) 21 x 18
Bedroom (Level-Upper) 11 x 10
Bedroom (Level-Upper) 12 x 10

Change History

Listing Courtesy of Real Broker LLC - [email protected]


Related Properties

$350,000

MLS# 26018460

2515 E Primrose Lane, Altamont, IL 62411

Subdivision: Town & Country

Coming Soon

5 bds 3 ba 1,288 sqft $N/A per sqft Multi/Split type