Pending MLS# 26020282

210 Vistaoak Court, Unincorporated, MO 63021

Subdivision: Shadowoak 2

List Price: $250,000

3

Bedrooms

2

Baths

1,016

Area (sq.ft)

$246

Cost/sq.ft

1 Story

Type

2

Days on Market
Call Agent

Description

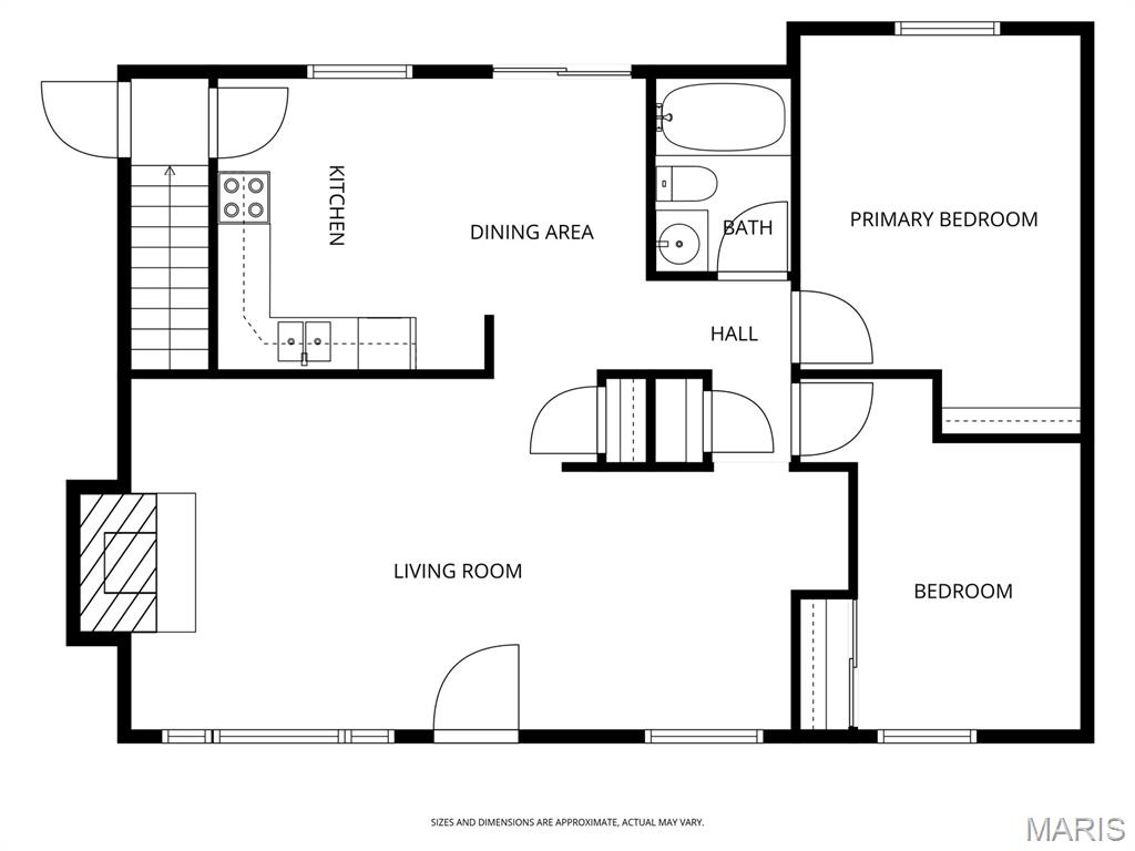
Charming 3-Bedroom Ranch with Private Pond Oasis in Ballwin! Welcome to 210 Vistaoak Ct in the heart of Ballwin, MO 63021. This well-maintained 1979 single-family ranch offers 1,016 sq. ft. of comfortable living space on a spacious 7,884 sq. ft. lot with an attached garage—perfect for first-time buyers, downsizers, or anyone seeking a low-maintenance home with exceptional outdoor appeal.Inside, you’ll find three bedrooms and 2 full baths arranged in a functional, easy-living floor plan. The bathrooms are solid and ready for simple cosmetic updates (think fresh paint, new fixtures, or updated countertops)—no full rehabs required, just your personal touch to make it shine. The kitchen could use new cabinets, counters, and floors to make it a gem, although it is functional as is. The deck also needs some attention, but seems to be structurally sound. Mechanical systems have been thoughtfully maintained: the roof is only 6 years old, the HVAC system dates to late 2018, and the water heater is less than 10 years old. These key updates deliver peace of mind and long-term efficiency.The true showstopper is the backyard retreat. Step onto the deck and enjoy sweeping views of the pond, stocked with fish and home to waterfowl and frogs. Fishing is permitted—ideal for weekend recreation, family gatherings, or peaceful mornings with coffee in hand. This rare water feature creates a true private oasis rarely found in the area.Conveniently located in a quiet Ballwin neighborhood with easy access to parks, shopping, and top-rated schools, 210 Vistaoak Ct offers the perfect blend of comfort, updates, and unique outdoor living. Schedule your showing today—this one won’t last long! Selling,as is. Seller to do no inspections OR repairs

Property Information

List Price $ 250,000
Original Price $ 250,000
Status Pending
MLS# 26020282
Bedrooms 3
Full baths 2
Half baths 0
Main Floor Full Baths 2
Sq. Ft. Above 1,016
Lot Size
Acres 0
Subdivision Shadowoak 2
Municipality Unincorporated
School District Parkway C-2
County St Louis
Property Type Residential
Style 1 Story
Style Description
Transaction Type
Special Conditions Listing As Is
Type
Building Exterior Amenities None
Building Style Ranch
Ownership Private
Special Description Listing As Is
Appliances Some Dishwasher,Range Hood

Additional Information

Elementary School Oak Brook Elem.
Jr. High School South Middle
Sr. High School Parkway South High
Association Fee $175/Annually
Architecture Ranch
Construction Vinyl Siding
Garage Spaces 2
Carport Spaces 0
Basement Description Bathroom,Partially Finished,Full,Sleeping Area,Walk-Out Access
Fireplace Type
Fireplace Location
Lot Dimensions 65 x 105
Special Areas
Cooling Central Air
Sewer Public Sewer Sewer
Heating Forced Air
Water Public
Heat Source
Kitchen
Appliances Dishwasher,Range Hood
Dining
Interior Decor Kitchen/Dining Room Combo
Property Tax $2,989

Map Location

Rooms Dimensions

Room Dimensions (sq.rt)
Living Room (Level-Main) 25 x 13
Bedroom (Level-N/A) 8 x 11
Bedroom (Level-Main) 10 x 13
Bathroom (Level-Main) 7 x 5
Kitchen (Level-Main) 16 x 11
Other (Level-Main) 6 x 5
Family Room (Level-Lower) 23 x 13
Family Room (Level-Lower) 13 x 11
Bedroom (Level-Lower) 12 x 9
Bathroom (Level-Lower) 6 x 6
Laundry (Level-Lower) 12 x 9
Other (Level-Lower) 9 x 4

Change History

Listing Courtesy of Lauralei Properties, LLC - [email protected]